V.ze Campus-trilocale t/autonomo con giardino
L’immobile in oggetto è un appartamento di tre locali situato…
245.000€
Strada Argini 12, Montebello Parma (PR) 034027, Emilia-Romagna, Italia
In Vendita
420.000€
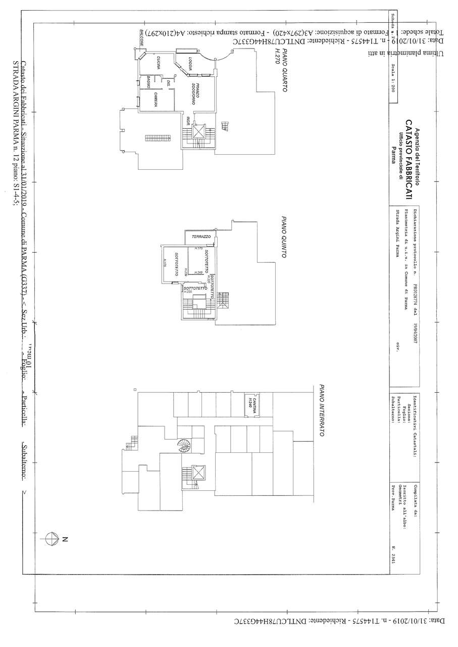
Luminoso e spazioso appartamento in vendita situato in una zona residenziale tranquilla, verde e ben servita. L’immobile, si compone di 4 vani che garantiscono praticità per gli abitanti, ampi gli spazi abitativi ideali per una famiglia. L’unità immobiliare di recente costruzione è un attico su due livelli con gradevole vista aperta e panoramica. Il soggiorno di 30mq è ampio con loggia sfruttabile, la cucina abitabile separata dotata di un balconcino di servizio, un bagno al piano con finestra e camera da letto di circa 15mq. Il piano superiore è completo di due ulteriori camere da letto, secondo bagno/lavanderia finestrato, ripostiglio e terrazzino a tasca. Pertinenziale una cantina pavimentata oltre ad un posto auto interno riservato. Possibilità di abbinare un garage doppio di 28mq. Il riscaldamento autonomo garantisce un ambiente caldo e accogliente durante i mesi invernali, mentre durante l’estate è possibile godere di una piacevole frescura grazie all’impianto di condizionamento e posizione dell’attico.
Questa proprietà è l’ideale per chi cerca una soluzione abitativa moderna, confortevole e con tutti i comfort necessari per vivere al meglio la propria quotidianità. Ape in fase di rilascio.
PER QUESTO RIFERIMENTO, VISTE LE NUMEROSE E-MAIL CHE CI PERVENGONO GIORNALMENTE, PER POTERVI DARE IL MIGLIOR E PIU’ CELERE SERVIZIO, VI CHIEDIAMO CORTESEMENTE DI CONTATTARCI TELEFONICAMENTE DIRETTAMENTE IL SIG. PREVIDI MASSIMO AL 348.5641541 oppure mandare un messaggio WhatsApp al 0521.242857.
Le caratteristiche tecniche e gli accessori indicati potrebbero in alcuni casi differire dall’effettivo stato dell’immobile. A causa delle difformità dei dati pubblicati dai vari portali, Immobiliare Duca Alessandro Srl, declina ogni responsabilità per eventuali involontarie incongruenze, che non rappresentano in ogni caso un impegno contrattuale.
L’immobile in oggetto è un appartamento di tre locali situato…
245.000€
Nelle vicinanze del centro storico, comodo a tutti i servizi…
207.000€