Via Cavour interna-Negozio-bottega
Via Cavour interna, pieno centro storico, vendesi negozio openspace di…
160.000€
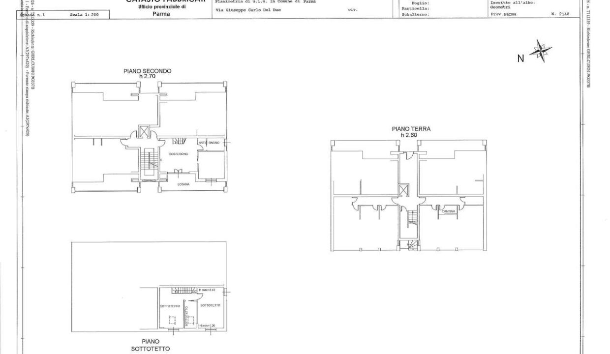
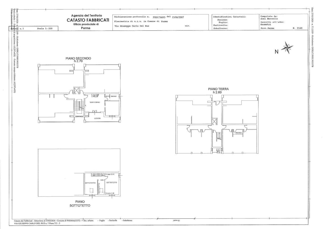
Via Giuseppe Carlo del Bue, Parma Parma (PR) 034027, Emilia-Romagna, Italia
In Vendita
320.000€
L’appartamento oggetto di vendita è un comodo trilocale distribuito su due livelli con terrazzo esposto ad Ovest, caratterizzato da finiture di alta qualità. Si trova in una piccola palazzina del 2007 in mattoncini con sole 8 unità abitative, situato all’ultimo piano in una via interna chiusa e riservata.
Contraddistinto da un parquet posato obliquamente in tutta la casa e riscaldamento individuale bizona. Tra le varie dotazioni e accessori un impianto di condizionamento trial split Daikin inverter e sistema di allarme volumetrico e perimetrale (anche sulla veranda), zanzariere, tendoni da sole elettrificati con sensore vento, bascula del garage automatizzata, stucco veneziano. Arredo cucina su misura marca Scic compreso. A completamento una cantina, garage e posto auto di proprietà, possibilità di acquistare una seconda autorimessa.
La posizione tranquilla e riservata, unita alle rifiniture di pregio e alla comodità dei parcheggi, rendono questo immobile un’ottima soluzione abitativa per chi cerca comfort e qualità. Ape in fase di emissione.
PER QUESTO RIFERIMENTO, VISTE LE NUMEROSE E-MAIL CHE CI PERVENGONO GIORNALMENTE, PER POTERVI DARE IL MIGLIOR E PIU’ CELERE SERVIZIO, VI CHIEDIAMO CORTESEMENTE DI CONTATTARCI TELEFONICAMENTE DIRETTAMENTE IL SIG. DE MARCHI MASSIMILIANO AL 348.5660940 oppure mandare un messaggio WhatsApp al 0521.242857.
Le caratteristiche tecniche e gli accessori indicati potrebbero in alcuni casi differire dall’effettivo stato dell’immobile. A causa delle difformità dei dati pubblicati dai vari portali, Immobiliare Duca Alessandro Srl, declina ogni responsabilità per eventuali involontarie incongruenze, che non rappresentano in ogni caso un impegno contrattuale.
Via Cavour interna, pieno centro storico, vendesi negozio openspace di…
160.000€
In centro a Tizzano Val Parma offriamo porzione di casa…
150.000€